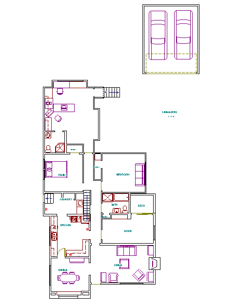
First Floor Plan

Click on various areas of the floorplan to get images of those areas (under construction).